售台南市東區透天
07-7963288
客服電話
申請房仲網站
首頁
房子租售
土地租售
法拍屋資訊
廠房租售
房屋仲介
大樓社區
委託買賣
關鍵字
現在位置:
首頁
›
房子租售
›
台南透天
›
東區透天
›
售台南市東區透天-台南東區中華東路三段
最後更新:18小時內
檢舉案件不實
│
列印
│
物件留言
|
觀看地圖
售台南市東區透天
售台南市東區透天
房子基本資料
案名
文化中心~稀有釋出透天車庫,售1438萬
案號
3989
地址
台南市東區
中華東路三段
銷售狀態
帶看中
售價
售1438萬
房子類型
透天_別墅
總登記坪數
38.46 坪
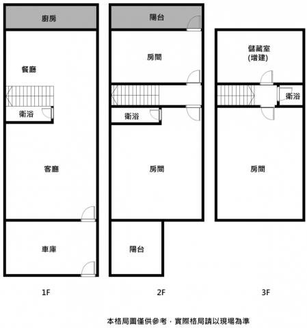
格局
4房, 2廳, 3衛, 2陽台, 1廚房
屋齡
36年
每坪單價
37.39萬/坪
公設比
車位
室內車庫
座向
無障礙環境
有
法拍屋
不是
建物所在樓層
共3樓
管理費
管委會
沒有
中庭
沒有
電梯
沒有
是否為凶宅
不是
300公尺內嫌惡設施
面前道路
6米路
面寬
縱深
邊間
房子銷售來源
不動產經紀人/專業仲介
房子特色
近文化中心~中華東路三段~崇明14街~東區~榮譽街
坪數說明
建物登記總坪數
38.46
土地登記總坪數
25.34
主建物坪數
停車位坪數
附屬建物坪數
公共設施坪數
增建坪數
地下室坪數
房子周邊環境
生活機能
鄰近交通
鄰近地標
公園綠地
鄰近學區
崇學國小,崇明國小,崇明國中
捷運站
房子聯絡人資訊
聯絡人姓名
陳盈秀
(煩請告知聯絡人,您是在House-Info房屋網看到這則廣告,真摯感恩您的幫忙)
手機
0928-010-990
電子信箱
Skype通話
Line加入好友
所屬公司名稱
誠昱不動產企業社(住商成大東興店)
公司電話
0928010990 (LINE)
公司傳真
公司地址
台南市永康區小北路30號
網 址
http://www.台南秀秀房仲網.tw
贊助商廣告
東區透天-1
東區透天-2
東區透天-3
東區透天-4
東區透天-5
東區透天-6
東區透天-7
東區透天-8
東區透天-9
東區透天-10
東區透天-11
東區透天-12
東區透天-13
觀看地圖
到Google查看地圖
到Google查看街景
台南東區中華東路三段-透天
物件留言
請注意,如果您詢問的內容與物件不相符合或是廣告,經過審核,系統將會直接刪除您的發問內容
檢舉物件不實
黃金熱銷
富強路一段
透天 / 5房
68.8坪
1838萬
南園街
透天 / 6房
25.25坪
888萬
相似物件
北園街
透天 / 4房
34.27坪
1198萬
德善路
透天_別墅_店面 / 5房
71.665坪
1550萬
海安路二段
透天 / 2房
18.61坪
1330萬
崇善一街
透天_別墅 / 4房
46.58坪
1588萬
www.houseinfo.tw房屋網
免責聲明:本系統為租用式開放房屋買賣網站建置平台,僅提供會員查詢-
售台南市東區透天
-等房屋資訊參考,並不涉入任何諮詢、交易。 物件(服務)聯絡人公佈的資訊、文字、照片、圖形、產權、廣告內容、或其他資料若有不實或違法情事,或與客戶聯絡交易過程中若衍生民事或刑事等法律問題,皆與本房屋網站無關,所有商標、文章、名稱等版權,皆歸屬原著作者所有! ●電話:07-7963288
台南華廈
│
台南電梯大廈
│
台南電梯大樓
│
台南大樓
│
台南大廈
│
台南電梯華廈
│
台南透天別墅
│
台南透天厝
│
台南公寓
│
台南店面
│
台南套房
│
台南預售屋
│
台南豪宅
│
台南樓中樓
│
台南農舍
│
台南雅房
│
台南國宅
│
台南辦公大樓
│
台南透天
│
台南中古屋
│
台南新成屋
│
台南新房屋
│
台南新房子
│
台南別墅
│
台南電梯別墅
│
台南別墅建案
│
台南透天店面
│
台南成屋
│
台南套房建案
│
台南屋主自售
│
台南透天建案
│
台南房屋
│
台南房子
│
台南新建案
│
台南電梯透天
│
台南大樓建案
│
台南建案
│
台南房地產
│
台南不動產
請注意:此案件已下架
資料處理中,請稍後...