拍賣北投區大樓
07-7963288
客服電話
申請房仲網站
首頁
房子租售
土地租售
法拍屋資訊
廠房租售
房屋仲介
大樓社區
委託買賣
關鍵字
現在位置:
首頁
›
法拍屋資訊
›
台北法拍大樓
›
北投法拍大樓
›
拍賣北投區大樓-台北北投天母西路120巷39號4樓
最後更新:2小時內
檢舉案件不實
│
列印
│
物件留言
|
觀看地圖
拍賣北投區大樓
拍賣北投區大樓
房子基本資料
案名
北投區 天母西路 【天墅】雙車位 天母國小 捷運石牌站
案號
114實71605 115/04/08(三) 14:30
地址
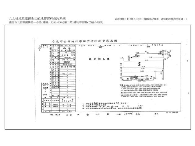
台北市北投區
天母西路120巷39號4樓
社區/大樓
台北-天墅
(國揚實業)
銷售狀態
待標中
售價
售9782萬
房子類型
法拍大樓
總登記坪數
137.63 坪
格局
0房
屋齡
20年
每坪單價
71.07萬/坪
公設比
車位
座向
無障礙環境
法拍屋
本物件是法拍屋
拍次 : 第一拍
開標日期 : 2026/04/08(三) 14:30
建物所在樓層
4樓/共23樓
管理費
管委會
有
中庭
有
電梯
有
是否為凶宅
300公尺內嫌惡設施
面前道路
面寬
縱深
邊間
是
房子銷售來源
不動產經紀人/專業仲介
房子特色
【法院筆錄內容】
1‧13346建號拍定後點交。
2‧民國114年10月28日現場執行時,債務人在場稱房屋為其及家人共同居住使用,停車位在地下3層,編號為7號及8號,亦由債務人使用。惟現在實際情形如何,仍請應買人自行查明注意。
3‧投標人應自行查明債務人有無積欠管理費,並注意拍定後民法第826條之1第3項規定之適用問題。
《清償信用卡消費借款》
【保證金】
1956.4萬
【拍賣履歴】
一拍2026/04/08底標價格9782萬
二拍底標價格7825.6萬
三拍底標價格6260.5萬
四拍底標價格5008.4萬
【焦點法拍履歴】
👩🏻⚖️從業二十年以上經驗|競競業業|正派經營
🎯投標準備⇥法拍流程說明|標單填寫|案件現場勘查有無特殊情事|成本評估分析
💰銀行貸款⇥法拍物件估價|投標人財力評估|銀行代墊款協助辦理|最高八成
🏡拍定得標⇥強制執行書狀、履勘陳報書狀往返|債務人搬遷協商|遺留物造冊查估
🎁委託代標⇥免費|委託代標未得標⇥免費
🏢鑫創資產管理有限公司
顏麗杏0911-965339營業員證號:(101)登字第212862號
連真甄0909-031993營業員證號:(101)登字第192002號
更多物件☞焦點法拍
經紀人李彥槿:109北市經證字第02110號
坪數說明
建物登記總坪數
137.63
土地登記總坪數
21.33
主建物坪數
54.21
停車位坪數
35.85
附屬建物坪數
6.18
公共設施坪數
41.39
增建坪數
地下室坪數
房子周邊環境
生活機能
鄰近交通
鄰近地標
公園綠地
鄰近學區
明德國中,天母國小
捷運站
石牌
房子聯絡人資訊
聯絡人姓名
小顏
(煩請告知聯絡人,您是在House-Info房屋網看到這則廣告,真摯感恩您的幫忙)
手機
0911-965-339
電子信箱
Skype通話
Line加入好友
所屬公司名稱
鑫創資產管理有限公司
公司電話
公司傳真
公司地址
新北市新莊區中環路二段423號一樓
網 址
http://www.1314home.tw
贊助商廣告
台北大樓法拍-1
台北大樓法拍-2
台北大樓法拍-3
台北大樓法拍-4
台北大樓法拍-5
台北大樓法拍-6
台北大樓法拍-7
台北大樓法拍-8
台北大樓法拍-9
台北大樓法拍-10
台北大樓法拍-11
台北大樓法拍-12
台北大樓法拍-13
台北大樓法拍-14
觀看地圖
到Google查看地圖
到Google查看街景
台北北投天母西路120巷39號4樓-大樓
物件留言
請注意,如果您詢問的內容與物件不相符合或是廣告,經過審核,系統將會直接刪除您的發問內容
檢舉物件不實
黃金熱銷
北安路805巷4弄
大樓_劍南山登山步道 / 2房
33.58坪
1923萬3000元
內湖路三段36號2
大樓_法拍大樓
55.13坪
4358萬
青年路8號11樓
大樓_法拍大樓
33.99坪
2035萬
後港街160-2號
大樓_法拍大樓
52.4坪
4717萬
相似物件
天母西路120巷3
大樓
137.64坪
9782萬
天母西路120巷3
大樓 / 4房
137.63坪
9782萬
天母西路120巷3
大樓
137.58坪
9782萬
天母西路120巷3
大樓 / 4房
137.63坪
9782萬
www.houseinfo.tw房屋網
免責聲明:本系統為租用式開放房屋買賣網站建置平台,僅提供會員查詢-
拍賣北投區大樓
-等房屋資訊參考,並不涉入任何諮詢、交易。 物件(服務)聯絡人公佈的資訊、文字、照片、圖形、產權、廣告內容、或其他資料若有不實或違法情事,或與客戶聯絡交易過程中若衍生民事或刑事等法律問題,皆與本房屋網站無關,所有商標、文章、名稱等版權,皆歸屬原著作者所有! ●電話:07-7963288
台北法拍華廈
│
台北法拍電梯大廈
│
台北法拍電梯大樓
│
台北法拍大樓
│
台北法拍大廈
│
台北法拍電梯華廈
│
台北法拍透天別墅
│
台北法拍透天厝
│
台北法拍公寓
│
台北法拍店面
│
台北法拍套房
│
台北法拍廠房
│
台北法拍辦公室
│
台北法拍豪宅
│
台北法拍樓中樓
│
台北法拍農舍
│
台北法拍廠辦
│
台北法拍雅房
│
台北法拍倉庫
│
台北法拍工業廠房
│
台北法拍透天
│
台北法拍中古屋
│
台北法拍別墅
│
台北法拍電梯別墅
│
台北法拍透天店面
│
台北法拍屋
│
台北法拍房屋
│
台北法拍房子
請注意:此案件已下架
資料處理中,請稍後...