| 房子基本資料 |
| 案名 | 信義計畫區【冠德遠見】SRC造,信義路五段95號3樓-1 | 案號 | 112吉157590 |
| 地址 | 台北市信義區信義路五段95號3樓-1 | 社區/大樓 | 台北-冠德遠見(冠德建設) |
| 銷售狀態 | 待標中 | 售價 | 售6754萬 |
| 房子類型 | 法拍大樓 | 總登記坪數 | 52.61 坪 |
| 格局 | 2房, 2廳, 2衛 | 屋齡 | 18年 |
| 每坪單價 | 128.38萬/坪 | 公設比 | |
| 車位 | 坡道平面 | 座向 | 朝北 |
| 無障礙環境 | | 法拍屋 | 本物件是法拍屋 拍次 : 1 開標日期 : 114/12/23
|
| 建物所在樓層 | 3/27 | 管理費 | |
| 管委會 | 有 | 中庭 | 有 |
| 電梯 | 有 | 是否為凶宅 | |
| 300公尺內嫌惡設施 | | 面前道路 | |
| 面寬 | | 縱深 | |
| 邊間 | 是 | 房子銷售來源 | 不動產經紀人/專業仲介 |
| 房子特色 | 貸款才是決勝點,提供預審,保證核貸 千萬經理人,接任台灣不動產拍賣協會監事
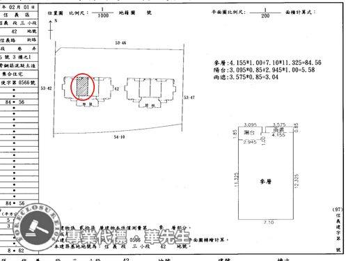
◆門牌:信義路五段95號3樓-1 ◆主建物:25.58坪 ◆附屬:2.61坪 ◆公設:11.29坪 ◆車位:13.13坪 【1車║坡平式║編號B2-92】 ◆土地:7.40坪 ◆土地現值【特定業務區■114年公告現值:1114833元/㎡】 ◆房屋用途:SRC造/住家用 ◆房屋樓層:所在3樓/總樓層27樓 ◆房屋朝向:朝北
【案件特色】 ◎信義計畫區核心地段、冠德遠見指標型社區 ◎房屋格局:2房/2廳/2衛(此格局為原建設規劃或內政部實價登錄,僅供參考,以現況為準!) ◎交通動線:位於信義路五段,近象山站與主要幹道,開車與通勤動線良好 ◎捷運站:象山站(150公尺),步行可達信義線與板南線轉乘便利 ◎公車站牌:信義路五段沿線多線公車,可快速前往台北各行政區 ◎生活機能:鄰近信義商圈、百貨商場、餐飲、娛樂、採買一次到位 ◎鄰近學校:博愛國小、興雅國中(雙語)等學區完整 ◎公園綠地:松德公園、信義綠園道與周邊綠地多、休閒散步方便 ◎金融機構:信義計畫區銀行與金融機構密集辦理業務效率高 ◎醫療診所:周邊診所與大型醫院資源完整、臺北市立聯合醫院
【社區簡介】 ◎冠德建設指標作品、位於信義計畫區、核心地段 ◎總戶數:122戶,社區規模完整管理成熟 ◎建設公司:冠德建設 ◎建築設計:李祖原建築師事務所,知名建築團隊規劃 ◎營造公司:根基營造,大型甲級營造廠施工,結構品質佳 ◎公共設施:接待大廳、中庭花園、交誼廳、會議室、健身房、游泳池、信箱區、垃圾集中處理、24小時管理
【法院筆錄】●點交情形→點交● 1‧2558建號建物現場查封時現為空屋狀態,無人居住使用,故拍定後點交,停車位位於地下2層,編號為92號,現已出租他人使用,並未簽定書面租約,每月租金為8000元,故停車位部分拍定後不點交,由拍定人自行解決。 2‧2544、2545建號建物均為公設,本件係拍賣應有部分,拍定後不點交,因公設部分應與專有部分一併為移轉登記,故建號共有人無優先承買權。《清償債務》
※無人買受時,酌減20%估算,概以執行單位公告為準 第一拍12/23底標價:6754萬 第二拍未定底標價:5404萬 第三拍未定底標價:萬
王牌經理人,十六年以上法拍經驗豐富 眼光最精準,代標多筆億元以上的案件 在地最深耕,資源豐富廣闊人脈執行力 協助自用者,找到理想實用的房屋圓夢 幫助投資人,創造物件最高投資報酬率 最專業團隊,讓您案件事半功倍又圓滿
【在地深耕,眼光精準,人脈廣闊】 ■產權清楚、案件評估、排除瑕疵事故 ■全程負責、快速交屋、拍後不被騷擾 ■代墊利率6.3%、額度8成、手續費0.3% ■房貸利率2.65%、免排隊、立即撥款 ■法拍屋代墊款、需要資金、歡迎找我
104法拍網|透明房訊|全國最大 ◆規模最大◈歷史最久◆ 全國七處分公司,300多位編制人員 成立於1986年,全國16家法院駐點 ◆專業最強◈全國唯一◆ 全國超過1800場授課專業講習 100坪倉庫,造冊拍賣遺留物 ◆正派經營◈開立發票◆ 營業員(99)登159091號 經紀人(96)年北市經證字01243號 一零四法拍網(股),統編28306523
能看屋的,網頁會註明。一般法拍屋查封之後無法入內參觀,可依據建物平面圖推斷室內格局是否方正,或參考樓上樓下鄰居房屋。(預約看屋留言,一律不回)
|
| 坪數說明 |
| 建物登記總坪數 | | 土地登記總坪數 | 7.4 |
| 主建物坪數 | 25.58 | 停車位坪數 | 13.13 |
| 附屬建物坪數 | 2.61 | 公共設施坪數 | 11.29 |
| 增建坪數 | | 地下室坪數 | |
| 房子周邊環境 |
| 生活機能 | | 鄰近交通 | |
| 鄰近地標 | | 公園綠地 | |
| 鄰近學區 | | 捷運站 | |
| 房子聯絡人資訊 |
| 聯絡人姓名 | 經理:華國峰 / 特助:李佩玟 (煩請告知聯絡人,您是在House-Info房屋網看到這則廣告,真摯感恩您的幫忙) |
| 手機 |  0916-000-104 | 電子信箱 | |
| Skype通話 | | Line加入好友 |
|
| 所屬公司名稱 | 透明房訊 ,104法拍網(股) |
| 公司電話 | (02)8262-5555 / (03)337-5555 | 公司傳真 | 全國直營,法拍專家 |
| 公司地址 | 新北市土城區金城路二段396號11樓 / 桃園市桃園區莊敬路一段346號4樓 |
| 網 址 | http://www.104法拍屋.tw |