拍賣松山區大樓

最後更新:6分鐘內
房子基本資料
案名 松山區光復北路210巷43號7樓 松山華城10大樓 案號 114職四134金
地址 台北市松山區光復北路210巷43號7樓<13> 社區/大樓台北-松山華城10區
銷售狀態 待標中 售價
售3057萬售2446萬
房子類型法拍大樓 總登記坪數 36.85 坪
格局 屋齡 24年
每坪單價 66.38萬/坪 公設比
車位 座向
無障礙環境 法拍屋 本物件是法拍屋
拍次 : 第三拍
開標日期 : 115/02/04
建物所在樓層 7樓/共13樓 管理費
管委會 中庭
電梯 未知 是否為凶宅
300公尺內嫌惡設施 面前道路
面寬 縱深
邊間 房子銷售來源 不動產經紀人/專業仲介
房子特色

▲拍賣公告:金服公司
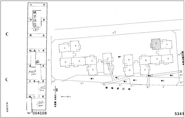
▲拍賣標的物:台北市松山區光復北路210巷43號7樓<13>
▲【謄本資料】:
建物登記:總坪數36.85坪主建坪18.27坪,附屬坪2.91坪,公設坪15.67坪
▲【法院筆錄】:
建物鄰近台北小巨蛋捷運站商圈,現場無水、無電,似無人居住,債務人表示偶爾會來,每月管理費新臺幣500元
▲【生活機能】:
▲【拍次說明】:
標售拍次(目前拍次底價):
第一拍底價:3822萬
第二拍底價:3057萬
第三拍底價:2446萬
拍賣日期:115/02/04
▲台北∣新北∣桃園∣新竹
★Houseinfo:http://www.xn--ogt54mdnjqrqpix.tw/
▲【代標服務】
<過濾案件>追蹤拍賣日期...
<評估案件>投標全場陪同及標價最後建議...
<包辦交屋>與法院協商現住人交屋事項...
<代墊尾款>辦理銀行代墊及投標尾款手續...

※此案件為法拍屋無法看屋,實際狀況以法院筆錄為主。
詳細資訊了解請撥李小姐(02)8260-2416|0986-508652
財欣不動產管理顧份有限公司【統一編號】28306523
坪數說明
建物登記總坪數 36.85 土地登記總坪數
主建物坪數 18.27 停車位坪數
附屬建物坪數 2.91 公共設施坪數 15.67
增建坪數 地下室坪數
房子周邊環境
生活機能 鄰近交通
鄰近地標 公園綠地
鄰近學區 捷運站
房子聯絡人資訊
聯絡人姓名 李小姐
(煩請告知聯絡人,您是在House-Info房屋網看到這則廣告,真摯感恩您的幫忙)
手機
0986-508-652
電子信箱
Skype通話 Line加入好友 Line加入好友
所屬公司名稱 財欣不動產管理顧問有限公司/統編2830 6053
公司電話 聯絡電話:02-82602416 / 0986508652 公司傳真
公司地址 新北市土城區金城路二段396號11樓/桃園市莊敬路一段346號4樓
網 址 http://www.精選法拍屋.tw
贊助商廣告
松山大樓法拍-1
松山大樓法拍-1
松山大樓法拍-2
松山大樓法拍-2
松山大樓法拍-3
松山大樓法拍-3
松山大樓法拍-4
松山大樓法拍-4
松山大樓法拍-5
松山大樓法拍-5
松山大樓法拍-6
松山大樓法拍-6
觀看地圖

台北松山光復北路210巷43號7樓<13>-大樓

物件留言
請注意,如果您詢問的內容與物件不相符合或是廣告,經過審核,系統將會直接刪除您的發問內容
等待圖示
檢舉物件不實
等待圖示
黃金熱銷
相似物件
www.houseinfo.tw房屋網免責聲明:本系統為租用式開放房屋買賣網站建置平台,僅提供會員查詢-拍賣松山區大樓-等房屋資訊參考,並不涉入任何諮詢、交易。 物件(服務)聯絡人公佈的資訊、文字、照片、圖形、產權、廣告內容、或其他資料若有不實或違法情事,或與客戶聯絡交易過程中若衍生民事或刑事等法律問題,皆與本房屋網站無關,所有商標、文章、名稱等版權,皆歸屬原著作者所有! ●電話:07-7963288