| 房子基本資料 |
| 案名 | 汐止東勢街法拍屋,研究苑社區,透天2層三房 | 案號 | 二拍【114實38616】 |
| 地址 | 新北市汐止區東勢街201巷373號2層樓,法拍屋代標 專線0913-303663 +LINE | 社區/大樓 | 新北-研究苑 |
| 銷售狀態 | 待標中 | 售價 | 售1353萬4000元售1084萬8000元 |
| 房子類型 | 法拍透天_白匏湖景區 | 總登記坪數 | 43.06 坪 |
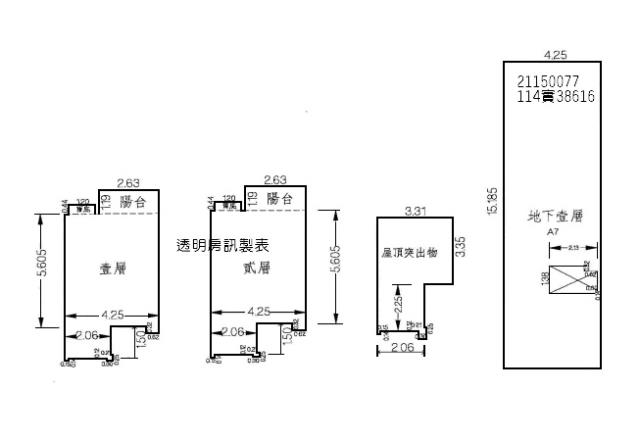
| 格局 | 3房, 1廳, 2衛, 2陽台, 1廚房 | 屋齡 | 30年 |
| 每坪單價 | 25.19萬/坪 | 公設比 | |
| 車位 | | 座向 | |
| 無障礙環境 | | 法拍屋 | 本物件是法拍屋 拍次 : 二拍 開標日期 : 115/06/24(三)
|
| 建物所在樓層 | 2層透天含未保存 | 管理費 | |
| 管委會 | | 中庭 | |
| 電梯 | 未知 | 是否為凶宅 | 不是 |
| 300公尺內嫌惡設施 | | 面前道路 | |
| 面寬 | | 縱深 | |
| 邊間 | | 房子銷售來源 | 不動產經紀人/專業仲介 |
| 房子特色 | ♛一零四法拍網(創立40週年)業界最大/專業團隊/全省服務/值得託付~
♠︎專業代標『吳先生』全程為您服務♠︎代標專線☎0913303663點入+line
💥💥💥刊登內容以公告機關為準請投標人注意🔥🔥🔥
法院筆錄:●點交情形→詳如備註●
1‧2203建號、3097建號拍定後點交,其餘係拍賣不動產應有部分,拍定後不點交。
2‧民國114年3月13日現場查封時,2203建號、3097建號房屋有第三人TARMUNAN在場稱係受僱之外傭,房屋現由其及債務人母親居住。經入內檢視內部有夾層,頂樓、天井皆有漏水,每層牆壁皆有壁癌,且有剝落情形。依強制執行法第113條準用第69條之規定,拍賣物買受人就物之瑕疵無擔保請求權,不得於拍定後主張,請應買人留意。另據社區總幹事稱1316建號係作為社區公設之體育館使用、2361建號係作為社區辦公室使用、2084建號係作為游泳池使用。惟現在實際情形如何,仍請應買人自行查明注意。
3‧3097建號係未登記建物,為頂樓屋突增建及1、2樓之夾層,依新北市政府違章建築拆除大隊114年8月6日新北拆認二字第1143268250號函示,該建物於列管系統內尚無違章建築認定紀錄,惟違章建築皆應列入分類分期處理,倘案經查認影響公共安全或經發現屬新建造之違章建築,或被列入專案處理者,將限期拆除。拆除風險請應買人自行注意,本件拍賣係以建物現況拍賣,當事人及拍定人均不得以面積不符,請求增減價金,拍定後無法以權利移轉證書辦理建物登記。
4‧投標人應自行查明債務人有無積欠管理費,並注意拍定後民法第826條之1第3項規定之適用問題。
《清償票款》
[他項權利:拍後塗銷]
[謄本]:總坪數43.06坪[主建坪35.14坪,附屬坪6.99坪,公設坪0.93坪(建號:1316,1317,2361,2084)],另增建坪18.04坪[RC造/住商用]
⚖️拍賣機關公告
📣司法院法拍屋公告📣國有財產署標售不動產資訊📣台灣金服含未辦繼承法拍物件
📣法拍屋拍定價公告📣法務部行政執行署法拍物件
📣產權清楚☆強制執行法【77條”81條】#瑕疵不擔保#【69條】
🔎法拍一點不燒腦~~眉角全都在這邊~~懶人包裡報您知~~
📣📣104法拍網/透明房訊/法拍屋,土地全省最新拍賣資訊
📣台北法拍屋快搜📣新北法拍屋快搜📣桃園法拍屋快搜📣台中法拍屋快搜
♠北區熱門法拍屋♠北區法拍屋精選♠樂屋網
⏳法拍屋代標流程~~
1.銀行代墊尾款:(最高可貸八成)2.現場合理價格評估
3.得標協助辦理過戶4.點交全程不用陪同
5.和諧交付等您入住6.未得標不收取費用
☛法拍代標找專業~☛投標必中下決心~☛過了這村沒那店~☛別讓資金睡著了
❤誠摯讓您感受最優質的代標全程服務
自備2成輕鬆成家~特約銀行核撥快速~只有買方安心選購~彈性出價理財首選~
❦免費諮詢可+line❦望您來電問透透❦消除疑慮再委託❦收費契約最透明
❦❦❦❦❦❦❦❦❦❦❦❦❦❦❦❦❦❦❦❦❦❦❦❦❦❦❦❦❦
雙北助理專線☎02-22650614桃園助理專線☎03-3293994全省☎0913303663
🏘️經紀業:財欣不動產管理顧問有限公司統一編號:22857204
✍經紀人:(97)年北市經證字001562號
💼營業員:(98)登字第133601號
❦❦❦❦❦❦❦❦❦❦❦❦❦❦❦❦❦❦❦❦❦❦❦❦❦❦❦❦❦❦❦❦❦❦❦❦
生活e點通~
📣財政部新青安成家📣全國地政電子謄本系統📣地籍圖便民服務📣房地合一專區
📣台北捷運路線圖📣新北捷運路線圖📣桃園捷運路線圖📣台中捷運路線圖 |
| 坪數說明 |
| 建物登記總坪數 | 43.06 | 土地登記總坪數 | 22.22 |
| 主建物坪數 | 35.14 | 停車位坪數 | |
| 附屬建物坪數 | 6.99 | 公共設施坪數 | 0.93 |
| 增建坪數 | 18.04 | 地下室坪數 | |
| 房子周邊環境 |
| 生活機能 | 林森公有市場,大尖山風景區,白匏湖景區山水綠生態公園,舊庄國小,誠正國中,樟樹國際實創高中,中央研究院,南港展覽館,近白雲山莊,北后雲天宮,總戶數約504戶,國道三號南港交流道,捷運南港展覽館站, | 鄰近交通 | |
| 鄰近地標 | | 公園綠地 | |
| 鄰近學區 | | 捷運站 | |
| 房子聯絡人資訊 |
| 聯絡人姓名 | 吳先生 (煩請告知聯絡人,您是在House-Info房屋網看到這則廣告,真摯感恩您的幫忙) |
| 手機 |  0913-303-663 | 電子信箱 | |
| Skype通話 | | Line加入好友 |
|
| 所屬公司名稱 | 財欣不動產管理顧問有限公司/專業代標/營業員(97)經證字號001562 |
| 公司電話 | 專業代標 吳先生 0913303663 02-22650614 03-3293994 | 公司傳真 | 02-22740884 03-3343929 |
| 公司地址 | 新北市土城區金城路二段396號11樓/桃園市莊敬路一段346號4樓/統編:22857204 |
| 網 址 | http://www.熱門法拍屋.tw |