拍賣淡水公寓

法拍屋,法拍屋代標,法拍屋出售
最後更新:5小時內
房子基本資料
案名 淡水區新生街|公寓四樓增建26坪|近捷運淡水站、淡水老街 案號 113貴87033 115/04/09(四)14:30
地址 新北市淡水區新生街90巷12號4樓
銷售狀態 待標中 售價
售553萬
房子類型法拍公寓 總登記坪數 26.26 坪
格局 0房 屋齡 49年
每坪單價 21.06萬/坪 公設比
車位 沒有車位 座向
無障礙環境 沒有 法拍屋 本物件是法拍屋
拍次 : 第1拍 不點交
開標日期 : 2026/04/09(四)14:30
建物所在樓層 4樓/共4樓 管理費
管委會 沒有 中庭 沒有
電梯 沒有 是否為凶宅
300公尺內嫌惡設施 面前道路
面寬 縱深
邊間 不是 房子銷售來源 不動產經紀人/專業仲介
房子特色

【法院筆錄內容】



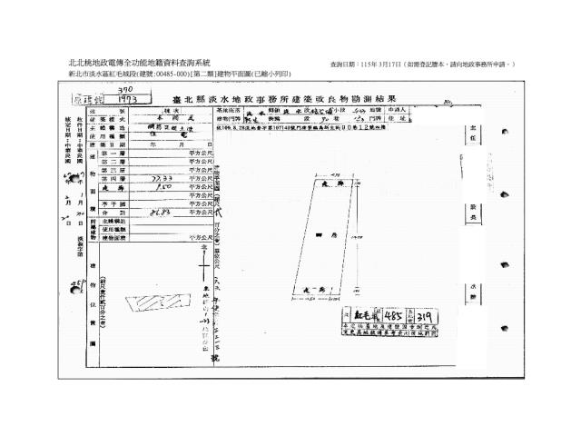
1‧485、暫編1939建號建物拍定後不點交。319地號土地拍賣不動產應有部分,拍定後不點交。

2‧114年3月12日現場查封、測量時,在場第三人陳小姐稱,債務人不住在這裡(即485建號建物),債務人為其前夫及兒子,債務人欠她錢所以住這裡,只要債務人還錢就搬走。陳小姐稱屋內有漏水,客廳後陽台天花板有鋼筋外露。暫編1939建號建物為鐵架、木板及石棉瓦搭蓋,裡面堆放雜物。114年7月11日新北市政府違章建築拆除大隊函覆,暫編1939建號建物,已有違章建築認定紀錄。惟現在實際情形如何,仍請應買人自行查明注意。

3‧暫編1939建號建物為未辦保存登記,拍定人不得持權利移轉證書辦理保存登記。且本件拍賣以建物現況拍賣,當事人及拍定人均不得以面積不符,請求增減價金。

4‧暫編1939建號建物有獨立之出入口,與485建號建物內部不相通。

5‧投標人應自行查明債務人有無積欠管理費,並注意拍定後民法第826條之1第3項規定之適用問題。

《清償票款》



【保證金】


【拍賣履歴】

一拍2026/04/09底標價格553萬

二拍底標價格442.4萬

三拍底標價格353.92萬

四拍底標價格283.14萬



【焦點法拍履歴】

👩🏻‍⚖️從業二十年以上經驗|競競業業|正派經營

🎯投標準備⇥法拍流程說明|標單填寫|案件現場勘查有無特殊情事|成本評估分析

💰銀行貸款⇥法拍物件估價|投標人財力評估|銀行代墊款協助辦理|最高八成

🏡拍定得標⇥強制執行書狀、履勘陳報書狀往返|債務人搬遷協商|遺留物造冊查估

🎁委託代標⇥免費|委託代標未得標⇥免費



🏢鑫創資產管理有限公司

顏麗杏0911-965339營業員證號:(101)登字第212862號

連真甄0909-031993營業員證號:(101)登字第192002號

更多物件☞焦點法拍



經紀人李彥槿:109北市經證字第02110號

坪數說明
建物登記總坪數 26.26 土地登記總坪數 8.99
主建物坪數 23.39 停車位坪數
附屬建物坪數 2.87 公共設施坪數
增建坪數 26.21 地下室坪數
房子周邊環境
生活機能 鄰近交通
鄰近地標 近捷運淡水站、淡水老街、淡江大學、淡水國小、淡水高中 公園綠地
鄰近學區 捷運站 淡水
房子聯絡人資訊
聯絡人姓名 小顏
(煩請告知聯絡人,您是在House-Info房屋網看到這則廣告,真摯感恩您的幫忙)
手機
0911-965-339
電子信箱
Skype通話 Line加入好友
所屬公司名稱 鑫創資產管理有限公司
公司電話 公司傳真
公司地址 新北市新莊區中環路二段423號一樓
網 址 http://www.1314home.tw
贊助商廣告
新北淡水法拍公寓-1
新北淡水法拍公寓-1
新北淡水法拍公寓-2
新北淡水法拍公寓-2
新北淡水法拍公寓-3
新北淡水法拍公寓-3
新北淡水法拍公寓-4
新北淡水法拍公寓-4
新北淡水法拍公寓-5
新北淡水法拍公寓-5
新北淡水法拍公寓-6
新北淡水法拍公寓-6
新北淡水法拍公寓-7
新北淡水法拍公寓-7
新北淡水法拍公寓-8
新北淡水法拍公寓-8
新北淡水法拍公寓-9
新北淡水法拍公寓-9
觀看地圖

新北淡水新生街90巷12號4樓-公寓

物件留言
請注意,如果您詢問的內容與物件不相符合或是廣告,經過審核,系統將會直接刪除您的發問內容
等待圖示
檢舉物件不實
等待圖示
黃金熱銷
相似物件
www.houseinfo.tw房屋網免責聲明:本系統為租用式開放房屋買賣網站建置平台,僅提供會員查詢-拍賣淡水公寓-等房屋資訊參考,並不涉入任何諮詢、交易。 物件(服務)聯絡人公佈的資訊、文字、照片、圖形、產權、廣告內容、或其他資料若有不實或違法情事,或與客戶聯絡交易過程中若衍生民事或刑事等法律問題,皆與本房屋網站無關,所有商標、文章、名稱等版權,皆歸屬原著作者所有! ●電話:07-7963288